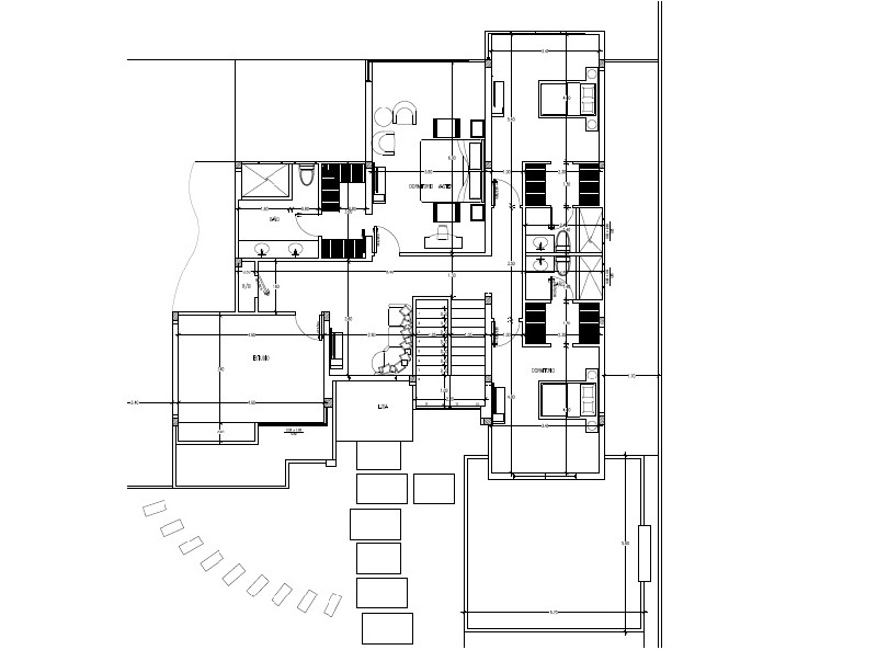
Proyecto La Laguna


“La Laguna”
Datos Generales
· Villa de 2 pisos
· Tipo moderna
· Construcción de: 275,60 mt2 más garaje de 30 mt 2
· Terreno de: 576 mt2
Detalles
· 3 dormitorios c/walking closets
· 3 1/2 baños
· Estudio (planta alta)
· Sala familiar (planta alta)
· Comedor
· Sala
· Cuarto de audio y video
· Comedor de diario
· Cocina
· Garaje techado (dos vehículos)
· Galería
· Cuarto de servicio




